反捞格栅(雨水格栅)
用途简介
反捞格栅除污机,简称雨水格栅除污机,适用于城市污水处理中雨水、污水泵站、给水提升泵站以及污水处理厂的进水泵房,用来拦截、清除漂浮杂物,是一种适用范围较广的除污设备。
结构及原理
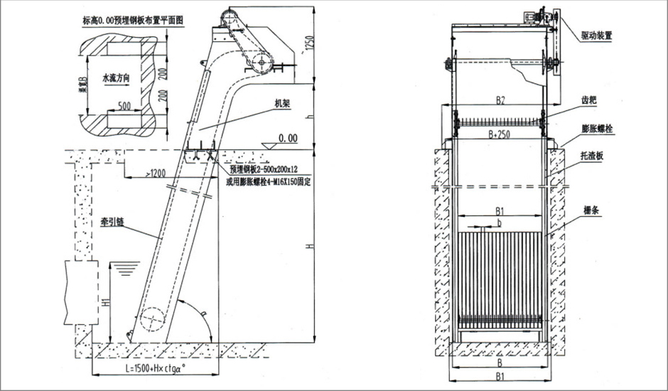
该设备采用链板回转式,由固定栅条组成过水栅面,当污水流过时,大于栅隙的杂物被拦截,耙齿板的耙齿深入栅条的间隙中,当驱动装置带动牵引链作回转运行时,耙齿把截留在栅面上的杂物自下而上带至出渣口,杂物依靠重力自行脱落,从卸料口中落下输送机或垃圾小车内,然后外运或作进一步的处理。
技术参数表
注:1、P以H=5.0m计,H每增加1m,则P总=P1(P2)+ΔP
2、可根据客户实际情况定制。
主要特点
● 驱动装置采用摆线针轮或斜齿轮式减速机经传动链驱动,噪声低、结构紧凑、运行平稳等特点;
● 机架为整体框架结构,刚性强,安装简便、日常维修工作量小;
● 耙齿板经精加工,精度高、外观美观。两耙齿板间距为2.0~2.5m,中间增设1道撑挡,可有效地清除较大杂物;
● 设备操作简便,可直接就地、远程控制设备的运行;
● 为防止意外过载,设有机械剪切销和过电流双重保护,使设备运行安全可靠。
过水流量表
外形安装图

