桁车式提耙刮泥机
用途简介
桁车式提耙刮泥机主要用于城镇污水处理厂及自来水厂的平流式沉淀池的排泥,该机为单向刮泥。根据用户要求,可增设撇油、撇渣装置。
结构及原理
该设备采用移动桥式,当刮泥机不工作时,即停在进水端;当刮泥机工作时,顺水流行驶时,先放下撇渣板,将池面浮渣撇向池端钢制撇渣槽内,而刮泥板被提离池底;反向行驶时,放下刮泥板将池底污泥刮向池端集泥槽内,而撇渣板被提起,离开液面以防浮渣逆行;依此作往返工作运行,从而达到刮泥、撇渣的目的。
技术参数表
主要特点
● 双边驱动,两侧滚轮传动同步,运行平稳;
● 水上行车采用钢轮行走,水下刮板采用橡胶滚轮行走;
● 撇渣与刮泥为反向方向;
● 设备操作简便,可直接就地、远程控制设备的运行。
型号说明

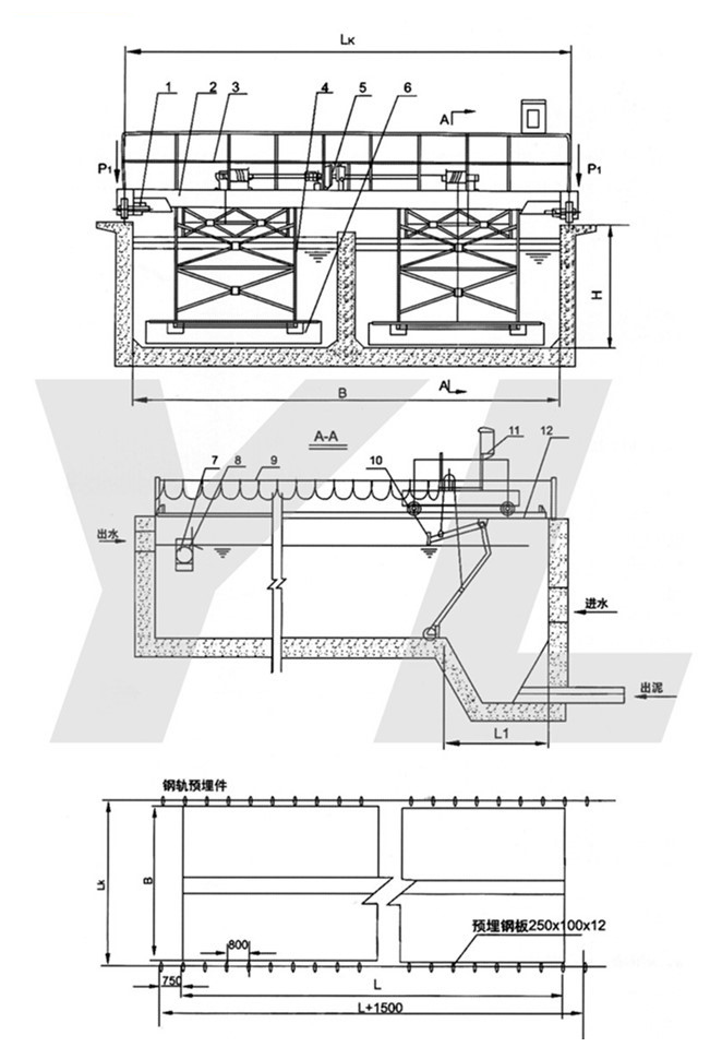
安装外形图
1、端梁驱动装置 2、主梁 3、栏杆 4、刮泥架 5、卷扬机构 6、刮泥系统 7、排渣阀 8、浮渣收集系统 9、移动电缆 10、撇渣机构 11、就地控制箱 12、路轨
