EN

无轴螺旋输送机



 用途简介    

无轴螺旋输送机适用于城镇污水处理厂、住宅小区污水预处理装置、市政雨水、污水泵站及自来水厂等的栅渣处理。它主要与格栅或脱水机等设备配套使用,将栅渣或脱水污泥进行输送。


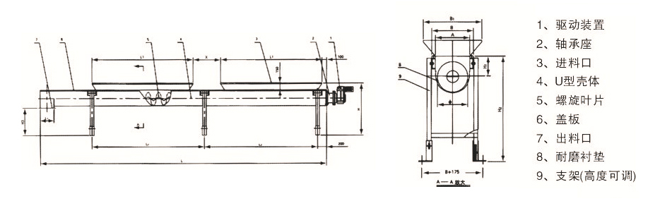
 结构及原理   
该设备采用连续式槽形带式,物料由格栅或脱水机卸料口落入输送机上,在电机的驱动下,物料被螺旋叶片带动从一端移动到另一端,末端与垃圾小车相衔接,再另行处理。

 技术参数表 


 主要特点   
● 驱动装置采用轴装式平行轴斜齿轮式减速机,结构紧凑,运行平稳安全;
● 输送方向由螺旋叶片的螺旋方向和电机的旋转方向确定,可实现双向输送;
● U型槽内设有内衬,耐磨性能强、使用寿命长、更换简便;

● 实行大通道输送,决不堵塞,运行可靠,噪音小,维护方便。