
用途简介
移动式抓斗清污机广泛应用于各种取水口上,是一种简单而有效的粗格栅清污装置,是保证后续设备的第一道保护屏障。它广泛应用于污水处理厂、饮用水取水口、雨水排涝及污水提升泵站、热电厂及核电站循环水泵房、大型水电站、河湖综合治理项目、各种工业领域废水出水口等设施的取水口。
移动式抓斗清污机污物处理量大、范围广,可以去除取水口大容量的类似浮木、树枝等类型的杂质和污物,如城市垃圾、生活污物、塑料制品、饮料罐、各种橡胶制品、废轮胎、各种杂草及河面漂浮物、树枝、树干及体积较大的工业垃圾、油桶等。
结构及原理
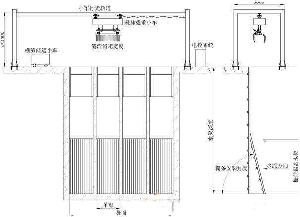
移动式抓斗清污机由四部分组成:格栅、悬挂单轨系列、移动小车和抓斗装置。悬挂单轨由厚钢板制成,和移动小车顶部完美配合,为移动驱动和支撑滚轮提供轨道。
在运转时,小车和耙斗在耙齿开启的情况下,沿着导轨移动至第一工作位,由装在导轨上的感应板感应到开关,而后下车停下,耙斗顶部的栅条一起将堆聚的垃圾推向格栅的底部;到达格栅底部,耙斗停止,耙齿通过液压推杆闭合。而后耙斗和抓聚的垃圾一起上升。当耙斗到达顶部位置,小车就反向运动至卸料位,而后抓斗打开,垃圾进垃圾箱待后续处理。接着,小车和耙斗移动至下一个工作位。在自动方式时,每一个工作位由安装在导轨内的感应板通过PLC选择定位。当所有的工作位都已被清污过,小车返回并停在初始位。
如果有很多垃圾或其它障碍物使得耙斗不能到底,小车上的松绳装置将使小车停止下行,同时闭耙并提升。抓聚的垃圾将被带到卸料位并卸料。随后小车移动至下一工作位,继续下一循环。提升到位和下放到底由一电驱动油泵输送,它直接安装在移动小车的油箱上。
当耙斗到达格栅的底部,限位开关通过PLC控制下放运动停止,液压泵工作,电磁换向阀引导油路使得耙斗闭合。接着电气控制系统使得机器按顺序工作直到小车到达卸料位为止,换向阀引导油路使耙斗开启。当耙斗完全开启到位,液压泵电机停止运行,等待下一个工作周期的开始。
除了上述换向阀,在油路里还装有溢流阀,以使油泵在压力到120bar时开始卸荷。
主要特点
● 一机多用,功能强大,省去了栅渣输送设备及卸渣设备;
● 无水下浸泡传动部件,维修方便;
● 结构简单,土建施工费用低;
● 密封式结构使工作平台洁净,符合环保要求;
● 对污物的处理量大,特别是对大型污物的清除;
● 耗电量低,节约能源,降低运行成本;
● 机械结构简单,故障率低,可靠性高;
● 采用先进的PLC及电子器件控制,与中控室可实现全面监控;
● 设备安全性高,有各种保护;
● 多种控制模式任意选择,灵活方面(时间控制,液位控制, 手动启动)。

工作示意图
技术参数表